Park View, St. Marys Road, Bournemouth £229,950

 Flat  2 bedrooms  1 bathrooms  Bournemouth

Description

A STUNNING SHARE OF FREEHOLD, TWO BEDROOM, MAISONETTE FLAT WITH ALLOCATED PARKING AND TWO ROOFTOP TERRACES AND SUNROOM. ONE OF THE MOST UNIQUE PROPERTIES THAT YOU WILL EVER SEE AND CERTAINLY ONE NOT TO BE MISSED


This amazing flat is like nothing that you will have seen and will make you the envy of your friends when then come to your house warming party!

The flats own their own freehold, shared in the usual way via a management company, so are well maintained, have no ground rent and a low service charge; currently circa £2,100pa this year, reducing to circa £1,700pa next year.

There is an off-road parking area to the side of the building with dropped kerb and then a path from here leads the communal front door. 

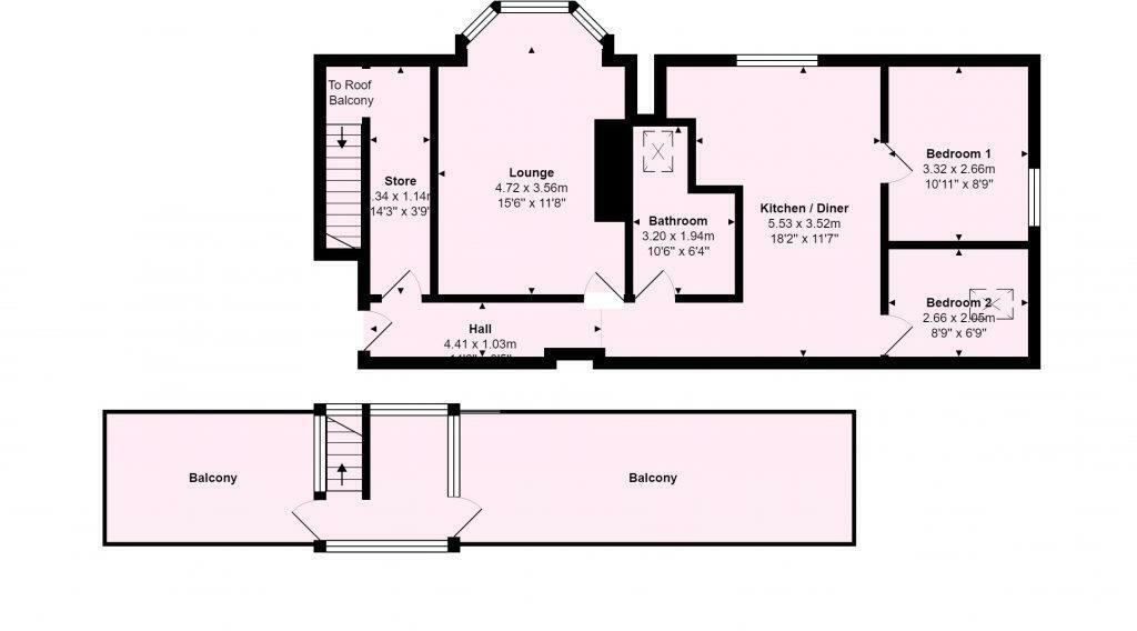
The front door of the flat leads to a long entrance hall that opens out to a semi open-plan

KITCHEN and the with stairs up to the roof top sunroom, terraces and attic storage. Detailed later. A great feature is a huge wall mural (mountains of New Zealand) running the full length on the right as you enter.

The LIVING ROOM has a window overlooking the front and has ample space for both sofa and dining suites, TV etc…. (the Golden Retriever is not included in the sale!)

The KITCHEN is open-plan with the hall, has its own window to the front and doors to the two bedrooms. It is fitted with a range of wall and base units with a sink by the window, inset gas hob with housed oven under and extractor over. There is space and plumbing for both dishwasher and washing machine and space for a fridge/freezer and breakfast table too. To one wall is the gas fired boiler that serves the central heating and hot water.

Both BEDROOMS are to the south side although one is set up as a home office at present.

The BATHROOM has a Velux style window to the front and a white suite including bath with shower over, WC and vanity basin.

The staircase to the upper floor has a part landing before the top with an access door that leads to a huge attic style storage space. This extends to the full size of the terraces above and whilst it does have very restricted headroom, is a truly useable space. 

The flats crowning glory (pretty much literally!) is at the top of the stairs where there is a nice, glazed garden room or conservatory with space for a sofa, artist's studio, reading room or chill out space. This has two terraces off it; to the right is the smaller of the two with space for a table and charirs etc.. The other side has a sunny southerly aspect and is a really good size with ample space for sunloungers, planters and the like. 

The whole upper area has a Wow! factor that is seldom found and really makes this a proper home to be proud of.

Viewing, obviously, has never been more recommended so book yours today

Tenure: Share of freehold, remainder 999 years lease.
Ground rent: NIL
Service charge: circa £2,100pa this year (self managed by residents' committee) dropping to circa £1,700 next year

IMPORTANT NOTE:
These particulars are believed to be correct but their accuracy is not guaranteed. They do not form part of any contract. Nothing in these particulars shall be deemed to be a statement that the property is in good structural condition or otherwise, nor that any of the services, appliances, equipment or facilities are in good working order or have been tested. Purchasers should satisfy themselves on such matters prior to purchase.


Book a viewing

Talk to us about this property:  01202 302345

Make an enquiry

Want to arrange a viewing? Need more information? Our friendly, experienced team is here to help.

01202 302345

Book a viewing
Location
Key features
  • LARGE ROOF TERRACES WITH FAR REACHING VIEWS
  • SHARE OF FREEHOLD
  • ALLOCATED OFF-ROAD PARKING
  • HUGE ATTIC STYLE STORAGE AREA
  • MODERN AND WELL PRESENTED
  • TOP FLOOR SUN ROOM, ALSO WITH VIEWS
  • GAS FIRED CENTRAL HEATING
Facts & figures
  • Flat
  • 2 bedrooms
  • 1 bathrooms
  • Bournemouth
Further details
Book a viewing